Beschrijving

Goed onderhouden instapklare 2-onder-1-kapwoning met berging, gelegen op korte afstand van het centrum van Meerssen. Deze woning word je aangeboden door Laura Makelaardij & Advies.

TYPERING

Zoek jij een instapklare woning, rustig gelegen en op loop-/fietsafstand van het centrum van Meerssen? Dan is deze woning aan het Weerterbroekplantsoen 93 in Meerssen zeker het bekijken waard!

Deze halfvrijstaande woning is nagenoeg geheel gemoderniseerd en het geheel is afgewerkt met neutrale en degelijke materialen.

Een ruime L-vormige woonkamer, separate keuken en een riante berging met zolder zorgen voor veel leef- en bergruimte. Op de eerste verdieping zijn er twee slaapkamers, een separate toiletruimte en een badkamer te vinden. De zolderverdieping geeft ruimte aan een derde slaapkamer en nog meer opbergruimte.

Met veel leef- en bergruimte, 3 slaapkamers, een privacy rijke tuin en een rustige en centrale ligging is deze woning zeer geschikt voor starters en jonge gezinnen.

BEZICHTIGINGEN

Wil je deze woning bezichtigen? Dan verzoeken we je vriendelijk om een aanvraag in te dienen via onze website of Funda, eventueel met toelichting/motivatie. Wij nemen dan telefonisch contact met je op om een afspraak in te plannen.

LIGGING

De woning is gelegen op korte van het gezellige centrum van Meerssen. Voorzieningen zoals diverse winkels, eetgelegenheden, een huisartsenpraktijk, bibliotheek, basisschool en middelbare school zijn op loop-/fietsafstand gelegen. Tevens is er in het centrum een bus- en treinstation gelegen. Op de oprit en in de straat is voldoende gratis parkeergelegenheid aanwezig.

Uitvalswegen zoals de A2, de A79 en de A76 zijn goed en snel bereikbaar. Zo ben je met de auto binnen 15 minuten in het centrum van Maastricht. Daarmee is Meerssen ook de perfecte woonomgeving als je bijvoorbeeld werkzaam bent in het AZM of bij de universiteit van Maastricht. 

ALGEMEEN

•	Bouwjaar circa 1976
•	Perceelgrootte 182 m2
•	Inhoud circa 460 m3
•	Woonoppervlak circa 110 m2
•	Overig inpandig circa 19,5 m2 (berging)
•	Grotendeels houten kozijnen, deels kunststof en deels aluminium
•	Geheel voorzien van isolerende beglazing
•	De woning is in 2023 voorzien van nieuw stucwerk
•	Dak geheel vernieuwd en geïsoleerd in 2014
•	C.v.-ketel (eigendom, geplaatst in 2009)
•	7 Zonnepanelen (eigendom, geïnstalleerd in 2022)
•	Definitief energielabel C (geldig tot en met 04-07-2033)

Indeling

Begane grond:
•	Entree met eikenhouten plankenvloer, meterkast en trapopgang naar de eerste verdieping. De ruimte onder de trap biedt een praktische plek voor het opbergen van schoenen en jassen.

•	Moderne deels betegelde toiletruimte met wandcloset en fonteintje. Deze toiletruimte is in 2024 geheel vernieuwd.

•	L-vormige woonkamer (circa 33 m2) voorzien van een eikenhouten plankenvloer en fraaie cinewall. Een grote raampartij aan de voorzijde, voorzien van zonwering, zorgt voor veel lichtinval. Aan de achterzijde zorgen openslaande tuindeuren voor optimaal tuincontact.

•	Semi-open keuken (circa 10,5 m2) voorzien van een tegelvloer en een keukeninstallatie in hoekopstelling m.o.m. een inductiekookplaat, afzuigkap, oven, vaatwasser, koelkast en handige apothekerskast. Een grote raampartij zorgt voor veel lichtinval en tuincontact.

•	Vanuit de keuken is de berging (circa 19,5 m2) te bereiken. De verwarmde berging is voorzien van een tegelvloer, witgoedaansluitpunten en een kastenwand. Er is een vlizotrap naar de bergzolder die boven deze berging is gelegen. Een deur geeft toegang tot de oprit en tot de achtertuin.

•	De achtertuin is onderhoudsvriendelijk aangelegd en nagenoeg geheel betegeld. Leibomen zorgen voor wat groen en privacy. De tuin heeft een achterom via de berging.

Eerste verdieping:
•	Overloop voorzien van een laminaatvloer, airco en trapopgang naar de zolderverdieping.

•	Slaapkamer 1 (circa 11,5 m2), gelegen aan de voorzijde van de woning en voorzien van een laminaatvloer. Het raam is voorzien van een rolluik.

•	Slaapkamer 2 (circa 13,5 m2), gelegen aan de achterzijde en voorzien van een laminaatvloer.

•	Separate en geheel betegelde toiletruimte met wandcloset. Deze toiletruimte is in 2025 geheel vernieuwd.

•	Geheel betegelde badkamer (circa 7 m2) met hoekbad, douchecabine, wastafel en design radiator.

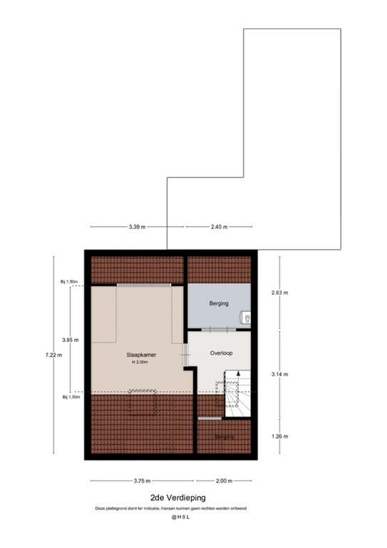
Tweede verdieping
•	Via vaste trap te bereiken zolderverdieping.

•	Overloop voorzien van vloerbedekking en met bergruimte in het schuine gedeelte. Tevens opstelling van de c.v.-ketel.

•	Slaapkamer 3 (circa 12 m2) voorzien van een laminaatvloer. Een dakkapel zorgt voor extra stahoogte en in combinatie met een dakraam is er tevens voldoende daglichttoetreding.

Bijzonderheden

•	Alle opgegeven maten en oppervlakten zijn indicatief.

•	Wij hebben geprobeerd je door middel van deze zorgvuldig samengestelde documentatie zo uitgebreid mogelijk te informeren. Desondanks kunnen hieraan geen rechten worden ontleend. Slechts de feitelijke situatie geeft een juist beeld, je bent van harte welkom voor een bezichtiging.

•	Ter bescherming van de belangen van zowel koper als verkoper, wordt uitdrukkelijk gesteld dat een koopovereenkomst met betrekking tot deze onroerende zaak eerst dan tot stand komt nadat koper en verkoper de koopovereenkomst hebben getekend ("schriftelijkheidsvereiste").

•	De termijn die wordt opgenomen voor eventuele (overeengekomen) ontbindende voorwaarden (bijvoorbeeld financiering) is in de regel 6 tot 8 weken na het sluiten van de mondelinge wilsovereenkomst.

•	De waarborgsom/bankgarantie is 10% van de koopsom. De koper dient deze 2 weken ná het vervallen van de ontbindende voorwaarden bij de desbetreffende notaris te deponeren.

•	Koper is te allen tijde gerechtigd voor eigen rekening een bouwkundige keuring te (laten) verrichten dan wel andere adviseurs te raadplegen teneinde een goed inzicht te verkrijgen over de staat van onderhoud.

Kenmerken