Beschrijving
Goed onderhouden 2-onder-1-kapwoning met tuinkamer en inpandige garage, gelegen op loopafstand van het centrum van Meerssen. Deze woning word je aangeboden door Laura Makelaardij & Advies.
TYPERING
Wil jij rustig en toch centraal wonen op loopafstand van het centrum van Meerssen? Dan is deze woning aan de Pastoor Arnold Somyasingel 1 het bekijken zeker waard!
Deze halfvrijstaande woning is gedateerd maar goed onderhouden. In 2006 is er een prachtige tuinkamer aangebouwd die zorgt voor meer leefruimte en optimaal tuincontact. De achtertuin biedt veel privacy.
Ook aan bergruimte geen gebrek: deze woning is namelijk volledig onderkelderd. Er is tevens een bergzolder, waar desgewenst een extra (slaap)kamer gerealiseerd kan worden (na het plaatsen van een vaste trap).
Met veel leef- en bergruimte, 3 slaapkamers en een privacy rijke tuin is deze woning zeer geschikt voor starters en jonge gezinnen.
BEZICHTIGINGEN
Wil je deze woning bezichtigen? Dan verzoeken we je vriendelijk om een aanvraag in te dienen via onze website of Funda, eventueel met toelichting/motivatie. Wij nemen dan telefonisch contact met je op om een afspraak in te plannen.
LIGGING
De woning is gelegen op loopafstand van het gezellige centrum van Meerssen. Voorzieningen zoals diverse winkels, eetgelegenheden, een huisartsenpraktijk, bibliotheek, basisschool en middelbare school zijn op loop-/fietsafstand gelegen. Tevens is er in het centrum een bus- en treinstation gelegen. Op de oprit en in de straat is voldoende gratis parkeergelegenheid aanwezig.
Uitvalswegen zoals de A2, de A79 en de A76 zijn goed en snel bereikbaar. Zo ben je met de auto binnen 15 minuten in het centrum van Maastricht. Daarmee is Meerssen ook de perfecte woonomgeving als je bijvoorbeeld werkzaam bent in het AZM of bij de universiteit van Maastricht.
ALGEMEEN
• Bouwjaar circa 1967
• Perceelgrootte 340 m2
• Inhoud circa 560 m3
• Woonoppervlak circa 120 m2
• Overig inpandig circa 70 m2 (souterrain en zolder)
• Kunststof kozijnen, m.u.v. houten voordeur en één houten raamkozijn
• Geheel voorzien van dubbel glas
• Het grote raam in de woonkamer (voorzijde) en het glazen dak van de tuinkamer zijn voorzien van elektrisch bedienbare zonwering
• C.v.-ketel (gehuurd, geplaatst in 2018)
• 10 Zonnepanelen (gehuurd, geïnstalleerd in 2022)
• Meterkast is vernieuwd in 2022
• Asbesthoudend dakbeschot aanwezig
• Definitief energielabel C (geldig tot en met 21-09-2030)
Indeling
Souterrain:
• Kelderruimte (circa 12 m2) voorzien van een tegelvloer en met trapopgang naar de begane grond.
• Wasruimte (circa 9 m2) voorzien van een tegelvloer en alwaar witgoedaansluitpunten, keukenblok met bovenkasten en standplaats van de c.v.-ketel.
• Garage (circa 28 m2) voorzien van een tegelvloer en een elektrisch bedienbare kantelpoort.
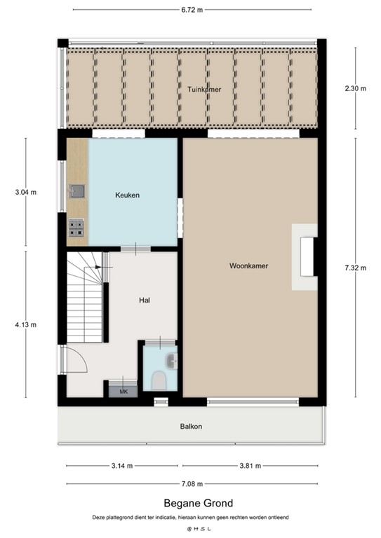
Begane grond:
• Entree met trapopgang naar de eerste verdieping, toegang tot de provisiekelder, zekeringenkast en geheel betegelde toiletruimte met wandcloset en fonteintje.
• Doorzon woonkamer (circa 28 m2) voorzien van een houten vloer en een schouw met haard. Een grote raampartij aan de voorzijde zorgt voor veel lichtinval. Doordat de woning hoger gelegen is, geniet je hier van privacy en een fraai zicht op het straatbeeld.
• Semi-open keuken (circa 9,5 m2) voorzien van een keukeninstallatie in rechte opstelling m.o.m. een 4-pits gaskookplaat, afzuigkap, koelkast en oven.
• In het verlengde van de woonkamer en keuken is de tuinkamer (circa 15,5 m2) gelegen. De tuinkamer is voorzien van een plavuizen vloer met vloerverwarming. De grote glaspartij met schuifpui zorgt voor veel lichtinval en optimaal tuincontact.
• De achtertuin is gesitueerd op het noordwesten en is fraai aangelegd met een gazon, borders met diverse (vaste) planten en een terras. De tuin heeft een achterom via de zijkant van de woning.
Eerste verdieping:
• Overloop voorzien van een houten vloer.
• Slaapkamer 1 (circa 11,5 m2), gelegen aan de voorzijde van de woning en voorzien van een houten vloer.
• Slaapkamer 2 (circa 15 m2), gelegen aan de achterzijde en voorzien van een houten vloer. Een vlizotrap geeft vanuit deze kamer toegang tot de zolderverdieping.
• Slaapkamer 3 (circa 8 m2), gelegen aan de achterzijde en voorzien van een houten vloer.
• Geheel betegelde badkamer (circa 5 m2) in neutrale kleurstelling. De badkamer is voorzien van een douche, wastafel en wandcloset.
Tweede verdieping
• Via vlizotrap te bereiken bergzolder (circa 18 m2). Met een nokhoogte van circa 2,30 meter is deze ruimte geschikt om, na het realiseren van een vaste trap en eventueel een dakraam of dakkapel, te gebruiken als slaapkamer.
Bijzonderheden
• Alle opgegeven maten en oppervlakten zijn indicatief.
• Wij hebben geprobeerd je door middel van deze zorgvuldig samengestelde documentatie zo uitgebreid mogelijk te informeren. Desondanks kunnen hieraan geen rechten worden ontleend. Slechts de feitelijke situatie geeft een juist beeld, je bent van harte welkom voor een bezichtiging.
• Ter bescherming van de belangen van zowel koper als verkoper, wordt uitdrukkelijk gesteld dat een koopovereenkomst met betrekking tot deze onroerende zaak eerst dan tot stand komt nadat koper en verkoper de koopovereenkomst hebben getekend ("schriftelijkheidsvereiste").
• De termijn die wordt opgenomen voor eventuele (overeengekomen) ontbindende voorwaarden (bijvoorbeeld financiering) is in de regel 6 tot 8 weken na het sluiten van de mondelinge wilsovereenkomst.
• De waarborgsom/bankgarantie is 10% van de koopsom. De koper dient deze 2 weken ná het vervallen van de ontbindende voorwaarden bij de desbetreffende notaris te deponeren.
• Koper is te allen tijde gerechtigd voor eigen rekening een bouwkundige keuring te (laten) verrichten dan wel andere adviseurs te raadplegen teneinde een goed inzicht te verkrijgen over de staat van onderhoud.
Plattegronden
1 Pastoor A. Somyasingel 1 Meerssen Begane Grond.jpg
2 Pastoor A. Somyasingel 1 Meerssen Verdieping 1.jpg
3 Pastoor A. Somyasingel 1 Meerssen Verdieping 2.jpg
4 Pastoor A. Somyasingel 1 Meerssen Souterrain.jpg