Beschrijving

Te moderniseren 2-onder-1-kapwoning met aanbouw, garage, tuin en veel potentie. Deze woning word je aangeboden door Laura Makelaardij & Advies.

TYPERING

Droom je van centraal wonen met alle voorzieningen van Bunde op loopafstand? Dan is deze woning aan de Wilgenlaan 24 in Bunde precies wat je zoekt!

Deze halfvrijstaande woning is gedateerd maar goed onderhouden en heeft veel potentie. Denk o.a. aan het vergroten van de woonkamer of het realiseren van een vaste trap naar de zolderverdieping. De achtertuin biedt veel privacy.

Met veel leef- en bergruimte, 3 slaapkamers en een ruime garage is deze woning zeer geschikt voor starters en jonge gezinnen.

BEZICHTIGINGEN

Wil je deze woning bezichtigen? Dan verzoeken we je vriendelijk om een aanvraag in te dienen via onze website of Funda, eventueel met toelichting/motivatie. Wij nemen dan telefonisch contact met je op om een afspraak in te plannen.

LIGGING

De woning is gelegen op loopafstand van het centrum van Bunde. Bunde is een dorp in de gemeente Meerssen dat een hoog voorzieningenniveau kent. Er zijn o.a. twee supermarkten en diverse andere winkels, twee basisscholen en sportvelden te vinden.

De bereikbaarheid is zeer goed. Op loopafstand ligt het trein- en busstation met verbindingen richting Sittard en Maastricht. Ook uitvalswegen zoals de A2 en de A79 zijn goed en snel bereikbaar.

Ook de natuur is snel opgezocht vanuit deze woning. Zo wandel je zo het Bunderbos in. Ook het mooie natuurgebied in rondom de Geul en het Julianakanaal is op steenworp afstand gelegen.

ALGEMEEN

•	Bouwjaar circa 1965
•	Perceelgrootte 309 m2
•	Inhoud circa 500 m3
•	Woonoppervlak circa 106 m2
•	Overig inpandig circa 35 m2 (kelder en garage)
•	Deels houten en deels kunststof kozijnen
•	Deels enkel glas, grotendeels dubbel glas en HR++ beglazing in driedelige schuifpui
•	Deels voorzien van elektrisch bedienbare rolluiken
•	C.v.-ketel (gehuurd)
•	Asbesthoudend dakbeschot aanwezig
•	Definitief energielabel E (geldig tot en met 29-09-2035)
•	Verkoper heeft deze woning niet zelf bewoond, in de koopovereenkomst zal dan ook een niet-zelfbewoningsclausule en een ouderdomsclausule worden opgenomen.

Indeling

Souterrain:
•	Provisiekelder (circa 8 m2, hoogte circa 1,90 m).

Begane grond:
•	Entree met trapopgang naar de eerste verdieping, toegang tot de provisiekelder, zekeringenkast en geheel betegelde toiletruimte met wandcloset en fonteintje.

•	De L-vormige woonkamer (circa 33 m2) is voorzien van vloerbedekking en een schouw met haard. Raampartijen zorgen voor veel lichtinval.

•	Separate keuken (circa 10 m2) voorzien van een keukeninstallatie in hoekopstelling m.o.m. een dubbele spoelbak, keramische kookplaat, afzuigkap, koelkast, oven en vaatwasser. Vanuit de keuken is er een deur naar de tuinkamer en naar de garage.

•	De tuinkamer (circa 10,5 m2) is voorzien van een tegelvloer. Een driedelige schuifpui zorgt voor veel lichtinval en optimaal tuincontact. Het is mogelijk om de woonkamer te vergroten door de tuinkamer erbij te betrekken.

•	Inpandig bereikbare garage (circa 23 m2) voorzien van een stalen kantelpoort met loopdeur en tevens deur naar tuin. De garage is voorzien van elektra, water en een aansluitpunt voor de wasmachine.

•	De achtertuin is gesitueerd op het zuidoosten waardoor je hier de hele dag door geniet van zon. De tuin is keurig aangelegd met een terras, gazon en borders met diverse (vaste) planten.

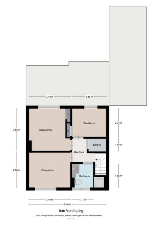
Eerste verdieping:
•	Overloop voorzien van vloerbedekking en met vlizotrap naar zolderverdieping.

•	Slaapkamer 1 (circa 10 m2), gelegen aan de voorzijde van de woning en voorzien van vloerbedekking.

•	Slaapkamer 2 (circa 12 m2), gelegen aan de achterzijde en voorzien van vloerbedekking en een muurkast.

•	Slaapkamer 3 (circa 7 m2), gelegen aan de achterzijde en voorzien van een laminaatvloer.

•	Berging (circa 1,5 m2, voormalige badkamer). Deze ruimte kan eventueel ook gebruikt worden om een vaste trap naar de zolderverdieping te realiseren.

•	Geheel betegelde badkamer (circa 3,5 m2) in neutrale kleurstelling. De badkamer is voorzien van een douche, badkamermeubel met wastafel en wandcloset.

Tweede verdieping
•	Via vlizotrap te bereiken bergzolder (circa 12 m2). Met een nokhoogte van circa 2 meter is deze ruimte geschikt om, na het realiseren van een vaste trap en eventueel een dakraam of dakkapel, te gebruiken als slaapkamer.

Bijzonderheden

•	Alle opgegeven maten en oppervlakten zijn indicatief.

•	Wij hebben geprobeerd je door middel van deze zorgvuldig samengestelde documentatie zo uitgebreid mogelijk te informeren. Desondanks kunnen hieraan geen rechten worden ontleend. Slechts de feitelijke situatie geeft een juist beeld, je bent van harte welkom voor een bezichtiging.

•	Ter bescherming van de belangen van zowel koper als verkoper, wordt uitdrukkelijk gesteld dat een koopovereenkomst met betrekking tot deze onroerende zaak eerst dan tot stand komt nadat koper en verkoper de koopovereenkomst hebben getekend ("schriftelijkheidsvereiste").

•	De termijn die wordt opgenomen voor eventuele (overeengekomen) ontbindende voorwaarden (bijvoorbeeld financiering) is in de regel 6 tot 8 weken na het sluiten van de mondelinge wilsovereenkomst.

•	De waarborgsom/bankgarantie is 10% van de koopsom. De koper dient deze 2 weken ná het vervallen van de ontbindende voorwaarden bij de desbetreffende notaris te deponeren.

•	Koper is te allen tijde gerechtigd voor eigen rekening een bouwkundige keuring te (laten) verrichten dan wel andere adviseurs te raadplegen teneinde een goed inzicht te verkrijgen over de staat van onderhoud.

Kenmerken