Beschrijving

2-onder-1-kapwoning met aanbouw, garage, tuin en een (werk)kamer op de begane grond. Deze woning word je aangeboden door Laura Makelaardij & Advies.

TYPERING

Droom je van centraal wonen met alle voorzieningen van Bunde op loopafstand? Dan is deze woning aan de Pletsstraat 34 in Bunde precies wat je zoekt!

Deze halfvrijstaande woning is voorzien van een aanbouw aan de achterzijde welke zorgt voor veel leefruimte op de begane grond. Een aanbouw aan de zijkant biedt ruimte aan een badkamer, bijkeuken en (werk)kamer. Op de eerste verdieping zijn er nog vier (slaap)kamers gelegen.

De woning is altijd met liefde bewoond geweest, maar het naar eigen wens moderniseren van diverse onderdelen is wenselijk.

BEZICHTIGINGEN

Wil je deze woning bezichtigen? Dan verzoeken we je vriendelijk om een aanvraag in te dienen via onze website of Funda, eventueel met toelichting/motivatie. Wij nemen dan telefonisch contact met je op om een afspraak in te plannen.

LIGGING

De woning is gelegen op loopafstand van het centrum van Bunde. Bunde is een dorp in de gemeente Meerssen dat een hoog voorzieningenniveau kent. Er zijn o.a. twee supermarkten en diverse andere winkels, twee basisscholen en sportvelden te vinden.

De bereikbaarheid is zeer goed. Op loopafstand ligt het trein- en busstation met verbindingen richting Sittard en Maastricht. Ook uitvalswegen zoals de A2 en de A79 zijn goed en snel bereikbaar.

Ook de natuur is snel opgezocht vanuit deze woning. Zo wandel je zo het Bunderbos in. Ook het mooie natuurgebied in rondom de Geul en het Julianakanaal is op steenworp afstand gelegen.

ALGEMEEN

•	Bouwjaar circa 1965
•	Perceelgrootte 331 m2
•	Inhoud circa 430 m3
•	Woonoppervlak circa 122 m2
•	Overig inpandig circa 9 m2 (kelder)
•	Externe bergruimte circa 17,5 m2 (garage)
•	Deels houten, deels kunststof en deels metalen kozijnen
•	Grotendeels voorzien van dubbel glas
•	Grotendeels voorzien van (elektrisch bedienbare) rolluiken
•	Deels voorzien van vloerisolatie
•	Bitumineuze dakbedekking van de hoofdbouw is vernieuwd in circa 2023
•	C.v.-ketel (gehuurd, geïnstalleerd in 2025, huurprijs € 38,35 per maand)
•	14 Zonnepanelen (gehuurd, geïnstalleerd in 2022, huurprijs € 80,- per maand). De woning kan eventueel aangekocht worden zonder de gehuurde zonnepanelen.
•	Definitief energielabel D (geldig tot en met 28-08-2035)

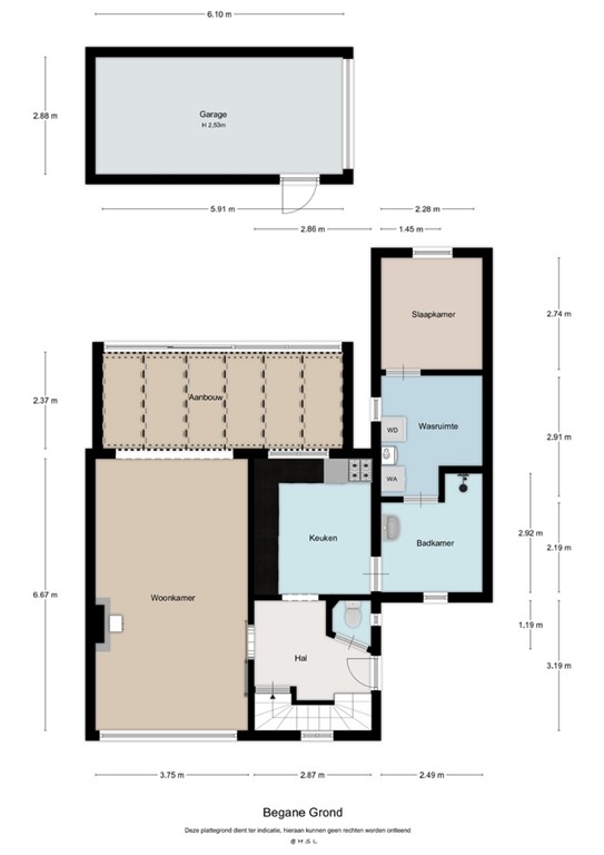
Indeling

Souterrain:
•	Provisiekelder (circa 9 m2, hoogte circa 1,95 m).

Begane grond:
•	Entree met trapopgang naar de eerste verdieping, toegang tot de provisiekelder, zekeringenkast en geheel betegelde toiletruimte met duoblok.

•	Woonkamer (circa 25 m2) voorzien van een pvc vloer en een schouw met pelletkachel (ter overname). Een grote raampartij aan de voorzijde zorgt voor veel lichtinval.

•	In het verlengde van de woonkamer is in circa 2017 een fraaie aanbouw (circa 14 m2) gerealiseerd met grote raampartijen en een schuifpui naar de tuin. De aanbouw is voorzien van een laminaatvloer en airco.

•	Separate keuken (circa 8 m2) voorzien van een keukeninstallatie in hoekopstelling m.o.m. fornuis met gaskookplaat en oven, afzuigkap en vaatwasser. Vanuit de keuken is er een deur naar de badkamer.

•	De badkamer (circa 5,5 m2) is geheel betegeld en voorzien van een douche en een wastafel.

•	Bijkeuken (circa 7 m2) met witgoedaansluitpunten en standplaats van de c.v.-ketel.

•	Multifunctionele ruimte (circa 6 m2), bijvoorbeeld te gebruiken als eenpersoonsslaapkamer of werk-/hobbyruimte. Deze kamer is voorzien van vloerverwarming.

•	De onderhoudsvriendelijke achtertuin is gesitueerd op het zuidoosten en geheel omheind en voorzien van bestrating en grind. Een poort geeft toegang tot de oprit.

•	Garage (circa 17,5 m2) voorzien van een stalen kantelpoort. Voor de garage is een oprit gelegen met ruimte voor het parkeren van één auto op eigen terrein.

Eerste verdieping:
•	Overloop voorzien van een laminaatvloer.

•	Slaapkamer 1 (circa 10 m2), gelegen aan de voorzijde van de woning en voorzien van een laminaatvloer en deur naar balkon.

•	Slaapkamer 2 (circa 13,5 m2), gelegen aan de achterzijde en voorzien van een laminaatvloer.

•	Slaapkamer 3 (circa 7,5 m2), gelegen aan de achterzijde en voorzien van een laminaatvloer.

•	Slaapkamer 4 (circa 4,5 m2) is voorzien van een laminaatvloer en een muurkast. Deze ruimte zou ook geschikt zijn voor het realiseren van een badkamer op de eerste verdieping.

Bijzonderheden

•	Alle opgegeven maten en oppervlakten zijn indicatief.

•	Wij hebben geprobeerd je door middel van deze zorgvuldig samengestelde documentatie zo uitgebreid mogelijk te informeren. Desondanks kunnen hieraan geen rechten worden ontleend. Slechts de feitelijke situatie geeft een juist beeld, je bent van harte welkom voor een bezichtiging.

•	Ter bescherming van de belangen van zowel koper als verkoper, wordt uitdrukkelijk gesteld dat een koopovereenkomst met betrekking tot deze onroerende zaak eerst dan tot stand komt nadat koper en verkoper de koopovereenkomst hebben getekend ("schriftelijkheidsvereiste").

•	De termijn die wordt opgenomen voor eventuele (overeengekomen) ontbindende voorwaarden (bijvoorbeeld financiering) is in de regel 6 tot 8 weken na het sluiten van de mondelinge wilsovereenkomst.

•	De waarborgsom/bankgarantie is 10% van de koopsom. De koper dient deze 2 weken ná het vervallen van de ontbindende voorwaarden bij de desbetreffende notaris te deponeren.

•	Koper is te allen tijde gerechtigd voor eigen rekening een bouwkundige keuring te (laten) verrichten dan wel andere adviseurs te raadplegen teneinde een goed inzicht te verkrijgen over de staat van onderhoud.

Kenmerken