Beschrijving
Ruim en karakteristiek halfvrijstaand woonhuis met vier slaapkamers (meer mogelijk), garage en sfeervolle tuin. Deze woning word je aangeboden door Laura Makelaardij & Advies.
TYPERING
Met een woonoppervlakte van maar liefst circa 195 m2 kunnen we deze karakteristieke woning in Bunde beslist ruim noemen! Ondanks dat de woning zo groot is, zorgen authentieke details ervoor dat deze woning zeer sfeervol is.
De woning beschikt over een royale woonkamer met hoog plafond en kachel, een complete semi-open keuken met veel lichtinval en een fraai aangelegde patiotuin en siertuin met overkapping.
Met vier ruime slaapkamers, waarvan één met zichtbare kapconstructie en een nok van maar liefst 4,5 meter, en een moderne badkamer biedt deze woning volop ruimte, comfort en charme.
Tot slot heeft deze woning veel bergruimte te bieden dankzij het souterrain, meerdere vlieringen en de geïsoleerde garage.
BEZICHTIGINGEN
Wil je deze woning bezichtigen? Dan verzoeken we je vriendelijk om een aanvraag in te dienen via onze website of Funda, eventueel met toelichting/motivatie. Wij nemen dan telefonisch contact met je op om een afspraak in te plannen.
LIGGING
De woning is gelegen op loopafstand van het centrum van Bunde. Bunde is een dorp in de gemeente Meerssen dat een hoog voorzieningenniveau kent. Er zijn o.a. twee supermarkten en diverse andere winkels, twee basisscholen en sportvelden te vinden.
De bereikbaarheid is zeer goed. Op loopafstand ligt het trein- en busstation met verbindingen richting Sittard en Maastricht. Ook uitvalswegen zoals de A2 en de A79 zijn goed en snel bereikbaar.
Ook de natuur is snel opgezocht vanuit deze woning. Zo wandel je zo het Bunderbos in. Ook het mooie natuurgebied in rondom de Geul en het Julianakanaal is op steenworp afstand gelegen.
ALGEMEEN
• Bouwjaar 1919
• Perceelgrootte 390 m2
• Inhoud circa 1.000 m3
• Woonoppervlak circa 195 m2
• Overig inpandig circa 85 m2 (kelder, garage, vliering)
• Gebouw gebonden buitenruimte circa 30 m2 (overdekt terras)
• Houten kozijnen met dubbel glas (m.u.v. enkel glas boven voordeur)
• Grotendeels voorzien van (deels elektrische bedienbare) rolluiken
• C.v.-ketel (gehuurd, geïnstalleerd in 2019, huurprijs € 41,40 per maand)
• 20 Zonnepanelen (eigendom, geïnstalleerd in 2021)
• Asbesthoudend dakbeschot aanwezig in hoofdbouw
• Definitief energielabel E (geldig tot en met 13-11-2035)
Indeling
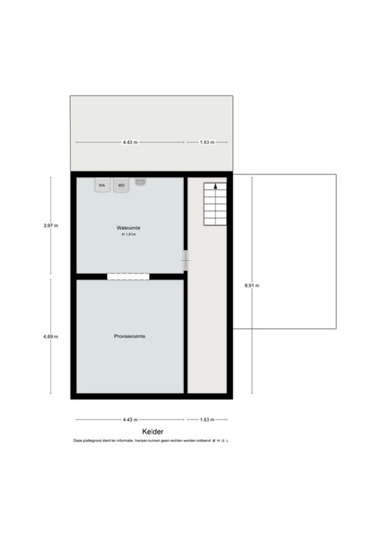
Souterrain:
• De hoofdbouw is geheel onderkelderd en onderverdeeld in 3 ruimtes (resp. circa 14,5 m2, 17,5 m2 en 22 m2) en heeft een gemiddelde stahoogte van circa 1,8 m. In één van de kelderruimtes zijn witgoedaansluitpunten voorzien.
Begane grond:
• Ruime entree met authentieke tegelvloer, sfeervolle lambrisering en bordestrap naar de eerste verdieping. Tevens deur naar de woonkamer, zekeringenkast, toegang tot de provisiekelder en deur naar portaal.
• De woonkamer (circa 41 m2) is ruim genoeg voor het plaatsen van een tv-hoek en een grote eetkamertafel. Het hoge plafond van circa 2,8 meter zorgt voor een extra ruimtelijk gevoel. Deze ruimte is deels voorzien van een planken houten vloer en deels afgewerkt met een tegelvloer.
• Semi-open keuken (circa 12,5 m2) voorzien van een keuken in hoekopstelling met neutrale kleuren. De keuken beschikt over een 5-pits gasfornuis met oven, magnetron, koelkast en vaatwasser. Vanuit de keuken is er toegang tot de patiotuin en een portaal. Een lichtstraat zorgt voor voldoende daglichttoetreding.
• Portaal met planken houten vloer en deur naar de tuin. Tevens toegang tot de geheel betegelde toiletruimte met wandcloset en fonteintje.
• De tuin bij deze woning is onderverdeeld in een sfeervolle patiotuin met overkapping (circa 9 m2) en een siertuin, eveneens met terrasoverkapping (circa 21 m2). De siertuin is gesitueerd op het noorden, geheel omheind met een mooie groenblijvende haag en aangelegd met een gazon en diverse vaste planten.
• De garage is vanuit de woning droog te bereiken via de grote terrasoverkapping. De garage (circa 23 m2) is gebouwd in 2007, volledig geïsoleerd en voorzien van een elektrisch bedienbare sectionalpoort. In de garage is tevens de standplaats van de c.v.-ketel en de omvormer t.b.v. de zonnepanelen. Een vliering zorgt voor extra bergruimte.
Eerste verdieping:
• Overloop voorzien van een planken houten vloer en lambrisering.
• Slaapkamer 1 (circa 18 m2), gelegen aan de achterzijde van de woning, is voorzien van een planken houten vloer.
• Slaapkamer 2 (circa 20 m2), gelegen aan de voorzijde, is eveneens voorzien van een planken houten vloer.
• Moderne badkamer (circa 8 m2) in neutrale kleurstelling en voorzien van een ligbad, douche, dubbele wastafel in meubel, wandcloset en designradiator.
Tweede verdieping:
• Via de authentieke bordestrap te bereiken overloop.
• Slaapkamer 3 (circa 17,5 m2) is voorzien van een planken houten vloer en verlaagd plafond.
• Slaapkamer 4 (circa 32 m2) is eveneens voorzien van een planken houten vloer. De zichtbare kapconstructie en een nokhoogte van maar liefst 4,5 meter maken deze slaapkamer uniek. Vanuit deze kamer is er toegang tot een vliering die zorgt voor extra bergruimte.
• De zolderverdieping kan desgewenst anders ingedeeld worden. Zo kan er één grote ruimte gerealiseerd worden, maar de zolderverdieping is ook groot genoeg om onder te verdelen in meerdere ruimtes.
Bijzonderheden
• Alle opgegeven maten en oppervlakten zijn indicatief.
• Wij hebben geprobeerd je door middel van deze zorgvuldig samengestelde documentatie zo uitgebreid mogelijk te informeren. Desondanks kunnen hieraan geen rechten worden ontleend. Slechts de feitelijke situatie geeft een juist beeld, je bent van harte welkom voor een bezichtiging.
• Ter bescherming van de belangen van zowel koper als verkoper, wordt uitdrukkelijk gesteld dat een koopovereenkomst met betrekking tot deze onroerende zaak eerst dan tot stand komt nadat koper en verkoper de koopovereenkomst hebben getekend ("schriftelijkheidsvereiste").
• De termijn die wordt opgenomen voor eventuele (overeengekomen) ontbindende voorwaarden (bijvoorbeeld financiering) is in de regel 6 tot 8 weken na het sluiten van de mondelinge wilsovereenkomst.
• De waarborgsom/bankgarantie is 10% van de koopsom. De koper dient deze 2 weken ná het vervallen van de ontbindende voorwaarden bij de desbetreffende notaris te deponeren.
• Koper is te allen tijde gerechtigd voor eigen rekening een bouwkundige keuring te (laten) verrichten dan wel andere adviseurs te raadplegen teneinde een goed inzicht te verkrijgen over de staat van onderhoud.
Plattegronden
1 Hemelboomlaan 21 Bunde Begane Grond.jpg
2 Hemelboomlaan 21 Bunde 1e Verdieping.jpg
3 Hemelboomlaan 21 Bunde 2e Verdieping.jpg
4 Hemelboomlaan 21 Bunde Vliering.jpg
5 Hemelboomlaan 21 Bunde Kelder.jpg